LINEで送る
分譲新築一戸建て
閲覧済み
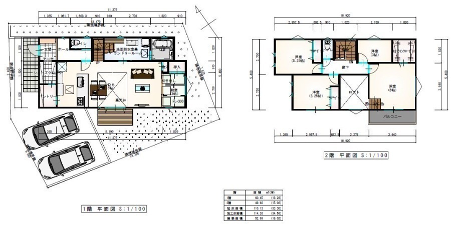
栗山  四街道駅 徒歩 22分  3,780万円
  • おすすめ
  • NEW
  • 価格変更
  • 会員限定
LINEで送る

この物件のお問い合わせ先

鶴産商事株式会社

お電話でのお問い合わせ
043-461-1331

〒285-0837
千葉県佐倉市王子台4丁目13-18 根本ビル2F

[ TEL ] 
043-461-1331
[ FAX ] 
043-462-0635
[ 営業時間 ] 
9:00~19:00
[ 定休日 ] 
水曜日
[ アクセス ] 
【電車でご来社の場合】
京成本線「京成臼井」駅徒歩7分にあり、京成臼井駅南口側にございます。

【お車でご来社の場合】
水道道路沿いにあるウエルシアさんの隣りに店舗があり、ウエルシアさんの裏手に駐車場がございます。
  • 一部、完成後1年以上を経過した未入居物件が新築物件として掲載される場合がございます。
  • 敷地権利が定期借地権のものは価格に権利金を含みます。
  • 完成予想図はいずれも外構、植栽、外観等実際のものとは多少異なる場合がございます。
  • CG合成の画像の場合、実際とは多少異なる場合がございます。
  • 図面と現況が異なる場合には現況を優先いたします。
  • 地積、建物床面積、仕様に変更が生じる場合がございます。
  • 物件情報は最新のものをご提供させていただきますが、万一売約済の場合はご容赦ください。
  • 建築条件付土地の販売は、売買契約後一定期間内に売主との間で建築請負契約を結ぶことが条件となり、この期間内に建築請負契約が成立しない場合は、受領金を全額返済した上で土地売買契約は白紙となります。
  • 掲載物件の取引態様が「仲介」「一般」「専属」「専任」となっているものは、ご成約の際に規定の手数料及びそれに係わる消費税を別途申し受けます。
  • 間取り表示のSはサービスルーム(納戸)の略称です。WICはウォークインクローゼット、DENは書斎の略称です。
  • 参考プランは、土地の購入者の設計プランの参考に資するための一例であって、参考プランを採用するか否かは土地購入者の自由な判断に委ねられます。